Price £1,100,000 - New Instruction


  • Homesteads Location
  • Detached Bungalow
  • Lovely Gardens
  • Views over The Green
  • High Quality Finish
  • Luxury Ground Floor Wet Room
  • Ample Parking
  • St Peter's School Catchment

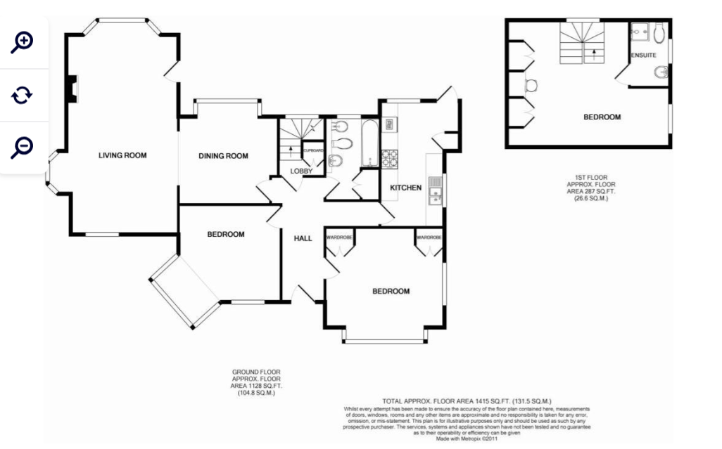
HOMESTEADS is the most prestigious location in Brentwood. Imagine finding the perfect BUNGALOW in the PERFECT LOCATION. Large rooms with lovely views over your garden or the pretty GREEN. The location is very special indeed. Two large bedrooms and luxury wet room on the ground floor compliments the luxury kitchen and exceptional lounge and dining rooms. The continuous wooden floors create a homely feeling and the matching doors continue with the homely feeling. For your guests the large third bedroom on the first floor has an En-Suite.

Storm Porch
Canopy porch with wooden front door.

Entrance Hall
Wooden floor with hall leading to all doors and door to stairs leading to bedroom three.

Lounge - 23'3" (7.09m) x 11'1" (3.38m)
Stunning sunny triple aspect main reception with wooden floor. Double glazed bays to two sides and further double glazed window and door to side. Radiators. Arch to dining area.

Dining Area - 10'11" (3.33m) x 1'3" (0.38m)
Bright and airy room with continued wooden floor. Double glazed window over looking rear garden

Kitchen - 15'1" (4.6m) x 7'10" (2.39m)
Fully fitted high quality kitchen with full range of eye and base level units. Extensive worktop preparation areas with inset sink and drainer. Double glazed windows to side and rear. Tiled floor.

Bedroom One - 14'8" (4.47m) x 13'8" (4.17m)
A lovely ground floor bedroom with views over the front garden. Continued wooden floor. Built in wardrobes. Double glazed bay to front aspect and double glazed window to side. Radiator.

Bedroom Two - 12'6" (3.81m) x 11'6" (3.51m)
Currently used as an office this is a lovely sunny room perfect as a second ground floor double bedroom. Wooden floor with double glazed bay window with views over The Green and further double glazed window to front. Radiator.

Ground Floor Wet Room
A fantastic wet room with walk in shower area with drench head shower over and separate hand unit. Easy access Spa bath. Part tiled walls and tiled floors. Close coupled W/C and pedestal wash hand basin. Heated chrome towel rail. Obscure double glazed window to rear

Door to stairs leading to first floor
Stairs ascending to the first floor. Coat cupboard.

Landing
Large double glazed window with far reaching views and open aspect to Bedroom Three

Bedroom Three - 19'7" (5.97m) x 9'6" (2.9m)
Open plan full width third bedroom with dual aspect double glazed windows. Large walk in wardrobe with auto light. Radiator. Door to En-Suite shower room.

En-Suite Shower Room
Shower cubicle with shower over. Part tiled walls. Close coupled W/C and pedestal wash hand basin. Heated towel rail.

Exterior
Driveway providing off street parking for in excess of four vehicles.

Front Garden
Large sunny garden with views of the green and enclosed within a white picket fence. This garden wraps around the property with the side garden separated by a closed board fence.

Rear Garden
With an excellent raised patio with dining area and steps leading to the main lawned level. The garden wraps around the property to the side garden. A wide double gate pathway leads back to the front.



Council Tax
Brentwood Borough Council, Band E

Notice
Please note we have not tested any apparatus, fixtures, fittings, or services. Interested parties must undertake their own investigation into the working order of these items. All measurements are approximate and photographs provided for guidance only.

Floor Plan
EER Chart

The Energy-Efficiency Rating is a measure of a home's overall efficiency. The higher the rating, the more energy-efficient the home is, and the lower the fuel bills are likely to be.

EIR Chart

The Environmental Impact Rating is a measure of a home's impact on the environment in terms of carbon dioxide (C02) emissions - the higher the rating, the less impact it has on the environment.

Utility Supply Type
Electric Mains Supply
Gas None
Water Mains Supply
Sewerage None
Broadband None
Telephone None

Other Items Description
Heating Not Specified
Garden/Outside Space No
Parking No
Garage No

Broadband Coverage Highest Available Download Speed Highest Available Upload Speed
Standard 12 Mbps 1 Mbps
Superfast 80 Mbps 20 Mbps
Ultrafast 10000 Mbps 10000 Mbps

Mobile Coverage Indoor Voice Indoor Data Outdoor Voice Outdoor Data
EE Likely Likely Enhanced Enhanced
Three Likely Likely Enhanced Enhanced
O2 Enhanced Likely Enhanced Enhanced
Vodafone Likely Likely Enhanced Enhanced

Broadband and Mobile coverage information supplied by Ofcom.


marker icon